Centrifugal Pump
ISW horizontal inline pump
ISW series inline close coupled pump are designed according to ISO2858 & JB/T53058-93 standard. It is used to transfer clean water, and other liquids that physical properties which are similar to those of pure-water, applicate in industrial and city water supply and drainage, high buildings booster water supply, garden irrigation, fire-fighting booster, remote water supply, heating systems, circulating booster of cold & hot water in bath rooms. The pumped liquid should be below 80¡æ.
Summary
ISW series inline close coupled pump are designed according to ISO2858 & JB/T53058-93 standard. It is used to transfer clean water, and other liquids that physical properties which are similar to those of pure-water, applicate in industrial and city water supply and drainage, high buildings booster water supply, garden irrigation, fire-fighting booster, remote water supply, heating systems, circulating booster of cold & hot water in bath rooms. The pumped liquid should be below 80¡æ.
Note: we also supply hot water pump, high temperature pump, chemical pump, oil pump with special design.
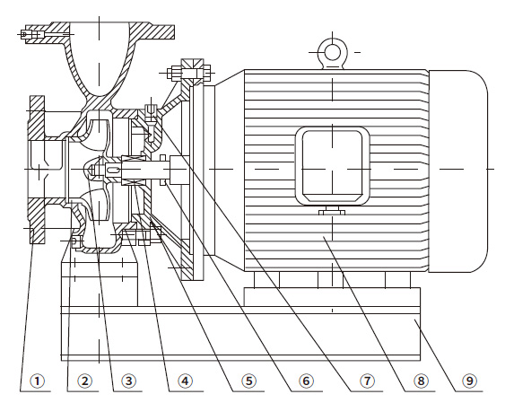
Construction
![]() |
Item | Description |
| 1 | Pump Casing | |
| 2 | Impeller | |
| 3 | Impeller Nut | |
| 4 | Mechanical seal | |
| 5 | Pump Cover | |
| 6 | Shaft Slinger | |
| 7 | Plug | |
| 8 | Motor | |
| 9 | Baseplate |
Advantages
No leakage- The pump is fitted with a mechanical seal with carbide alloy faces. This feature allows for leak free operation for extended periods guaranteeing a clean and tidy environment.
Easy to maintain ¨C It is not necessary to remove the pipeline for inspection and maintenance, simply undo the bolts on the backplate and remove motor and pump components.
The pump, according to the operating conditions of the worksite, may be mounted vertically or horizontally, mounted in parallel and/or in series to increase the flow and head.
1.Stable operation: the absolute concentricity of the pump shaft, high quality bearing of the motr, the impeller with excellent dynamic and static balance ensure stable operation and vibration free.
2. Easy Installation£ºWith same size of both inlet and outlet, being on the same centreline, the pump can be mounted on any part of the pipeline. When the motor covered with a rain-proof cap, can use outdoors.
2. Waterproof: Carbide seals of different materials ensure no leakage when transfer different media, wear resistance and long service life.
3. Low noise: With two low-noise bearings which runs smoothly, except for the low noise of the motor, .
4.Low failure rate: The structure is simple and reasonable, and the key parts are designed and manufactured with excellent water conservancy models, with low energy consumption, high efficiency, and greatly improved trouble-free working time of the whole machine.
5.Easy maintenance: It is easy and convenient to replace the seals and bearings, especially the horizontal pump has a rear-opening structure, which can be repaired without dismantling the pipeline.
6.Compact structure: The outlet of the horizontal pump can be left, right and upward, which is convenient for pipeline arrangement and installation, and the floor area is reduced by 30%. The vertical arrangement saves space due to its smaller footprint.
Pump details
|
Working Principle: |
close coupledinlineCentrifugal pump |
|
Main applications: |
Water, hot water,oil, chemical |
|
Driver: |
Electric motor |
|
Power Specs: |
220V/240V380/415V, 1/ 3phase; 50hz/60hz |
|
Max.permissible fluid temperature: |
80~240¡æ (464¡ãF) |
|
Type of connection: |
Flange |
|
Casing material: |
Cast iron, Stainless steel, Duplex SS, Bronze |
|
Impeller material: |
Cast iron, Stainless steel, Duplex SS, Bronze |
|
Shaft seal type: |
Mechanical seal |
|
Maximum drive rating: |
250KW(340HP) |
|
Maximum caliber: |
500mm(20inch) |
|
Maximum discharge-side pressure: |
¡Ü1.6MPa |
|
Maximum head: |
150m |
|
Flow rate range: |
2.5-1500m3/h |
|
Pump type: |
Water, Hot water type, oil type, chemical type |
|
Enviroment Temperature: |
<40¡æ |
|
Relative humidity: |
<95% |
|
Solid : |
Max Content:0.1%£¬max diameter<0.2mm (If with solid, please confirm before order) |
Scope of application
(1) ISW/ISG Inline centrifugal pump is sutable for industrial and urban water supply, drainage, high-rise building pressurized water supply, garden sprinkler irrigation, fire pressurization, long-distance transportation, HVAC Refrigeration cycle, bathroom and other cold and warm water cycle pressurization and equipment matching, the operating temperature T < 80 ¡æ.
(2) ISWR/ IRG hot water circulation pipeline pump, suitable for metallurgy, chemical industry, textile, wood processing, papermaking, high temperature hot water pressurized circulation transportation of boilers in restaurants, bathrooms, hotels, etc., as well as urban housing heating circulation pumps, the operating temperature is 120 ¡æ the following. If higher temperature liquid, contact and we will design and customzie for you.
(3) ISWH/ IHG type chemical stainless steel centrifugal pump, suitable for conveying corrosive liquid medium without solid particles, widely used in petroleum, chemical industry, metallurgy, papermaking, food, pharmaceutical and synthetic fiber and other departments, its use conditions: -20 ¡ãC ¡Ü temperature ¡Ü 120¡ãC.
(4) ISWB/YG type explosion-proof oil pipeline pump, which is specially designed to transport petroleum products, such as gasoline, kerosene, diesel and other petroleum products, and the temperature of the medium being transported is -20¡æ ~ +120¡æ.
English
ÖÐÎİæ


